Kontakt zu Aktionen
Preisaktion Garagentore
Preisaktion Premium-Garagentore
Beratung & Kontakt
Kontakt aufnehmen
Angebot anfragen
Broschüren bestellen
Planungsunterlagen anfordern
Feuerschutztüren NovoPorta Plano
Feuerschutztüren in flächenbündigem Design für die anspruchsvolle Architektur
Novoferm Feuerschutztüren NovoPorta Plano mit flächenbündig stumpf einschlagenden Türblättern stehen Ihnen in der Brandschutzklasse T30 (EI2 30) für den Inneneinsatz zur Verfügung.

Elegante, flächenbündige Optik
Die Design-Multifunktionstür NovoPorta Plano wertet gerade die anspruchsvolle Architektur auf. Mit dem stumpf einschlagenden Modul ist die Tür mit der Zarge flächenbündig in der Wand eingebaut. (Bei einer gefälzten Tür hingegen liegt das Türblatt auf der Zarge auf).

Hohe Funktionalität
Stahltüren NovoPorta Plano mit flächenbündigem Design sind als Brandschutztür (EI2 30), Rauchschutz-, Sicherheits- (RC 2) , Schallschutz- (bis RW = 42 dB) und Mehrzwecktür erhältlich - für eine einheitliche Tür-Optik im gesamten Objekt.

Viele Montagevorteile
Bei der Tür-Serie stehen Ihnen viele schnelle, einfache und saubere Montageverfahren und Möglichkeiten zur Zargenhinterfüllung zur Auswahl (Falz-Schraubmontage, Hinterfüllung mit Brandschutzschaum, lose Minteralwolle,….)
Tür-Vergleich und Eigenschaften
Vergleich Feuerschutztüren NovoPorta Plano
Türbezeichnung | Stumpfeinschlagend | T30 (EI2 30) | EI2 60 | T90 (EI2 90) | RS | Schalldämmend | RC2 | RC3 | Wärmedämmend |
T30-1/EI2 30-1 Plano Tür 1-flügelig | • | • |
|
| • | • | • | • | • |
T30-2/EI2 30-2 Plano Tür 2-flügelig | • | • |
|
| • | • | • | • | • |
DETAILS ZUR NOVOPORTA PLANO T30 (EI 30)

DETAILS ZUR NOVOPORTA PLANO T30 (EI2 30)
Beschläge:
3-teilige 3-D verstellbare Konstruktionsbänder mit Gleitlagern serienmäßig. Je Flügel zwei Bänder (> 2.500 mm BRM-Höhe drei Bänder) im Standard weiß grundiert ähnlich RAL 9016; optional auch in Edelstahl lieferbar. Zwei Sicherungszapfen je Türflügel. PZ-Wechselschloss mit Edelstahlstulp mit schwarzer Rundgriff-Drückergarnitur festdrehbar gelagert mit Rundrosetten. Profilzylinder bauseits (Länge 90 mm, 45/45 mm). Einflügelige Türen standardmäßig mit Novoferm Gleitschienen-Türschließer NFGS 55 auf Bandseite (> 1.250 mm BRM-Breite inkl. Gleitschienen-Türschließer Geze TS 5000).
Zusätzlich bei zweiflügeligen Türen:
Gleitschienen-Obentürschließer Geze TS 5000 ISM oder Dorma TS 93 GSR mit integrierter Schließfolgeregelung. Flächenbündiger Mittelanschlag mit Mittelfalzdichtung. Standflügel mit Falztreibriegel, Verriegelung nach oben (optional auch mit Verriegelung nach oben und unten).
Zargen:
Standard Eckzarge mit dreiseitigem Dichtungsprofil, 2 mm dick, Spiegelbreite 50 mm, wahlweise Umfassungszarge, zweiteilige Umfassungszarge Profil 2240B, Gegenzarge sowie Blockzargen für stumpfen Wandanschluss.
Schwellen:
Standard A fußbodeneben, wahlweise B3 mit vierseitig umlaufendem Rahmen oder C2 mit unterem Anschlag oder Dichtschwellen RS1 mit absenkbarer Bodendichtung, doppelter Schwelle RS1 bzw. Höckerschwelle mit Auflaufdichtung RS2.
Oberflächen:
Türblatt und Zarge verzinkt und grundiert (pulverbeschichtet) ähnlich RAL 9016. Optional Türblatt und Zarge auch mit Novoferm Design-Oberfläche lieferbar.
AUF WUNSCH AUCH MIT:
- Oberteil – vollblatt oder verglast
- Brandschutzverglasung
- Rauchschutz nach DIN 18095 bzw. EN 1634-3 mit absenkbarer Bodendichtung (RS1) oder Höckerschwelle mit Auflaufdichtung (RS2)
- Schalldämmend – geprüft nach DIN EN ISO 140-3, bewertet nach DIN EN ISO 717-1 (Laborwert für Vollblatt und Schwelle RS1 – für einflügelige Elemente 35 dB RW,P, für zweiflügelige Elemente 33 dB RW,P)
- Einbruchhemmend RC2 (WK2) – beidseitig geprüft nach DIN EN 1627 – einflügelig bis BR 1.375 x 2.750 mm, zweiflügelig bis BR 2.500 x 2.500 mm
Highlights Multifunktions-Stahltüren
In dieser Animation werden die Highlights und Möglichkeiten von Novoferm Multifunktions-Stahltüren in visuell ansprechender und komprimierter Form vorgestellt.
Weitere Animationen finden Sie unter:
Ihre Pluspunkte im Überblick
- Ein- und zweiflügelige Feuerschutztüren aus Stahl für den Inneneinsatz
- Feuerhemmend geprüft nach DIN EN 1634-1 und bauaufsichtlich zugelassen nach DIN 4102
- Türblatt flächenbündig stumpf einschlagend, 64 mm dick, Blechdicke 1,0 mm
- Türblatt und Zarge verzinkt und grundiert (pulverbeschichtet) ähnlich RAL 9016
Ausstattungen
OBERFLÄCHEN UND DESIGNS
OBERFLÄCHEN UND DESIGNS
ATTRAKTIVES DESIGN MIT ANSPRUCH
PERFEKT FÜR BUSINESS, LOBBY, LOUNGE.
Konsequent schlicht in seiner Formensprache: Dieses Türenkonzept lädt ein, ansprechende Architektur mit sicherer Technik auszustatten – z. B. im Objektbau, im hochwertigen Büro- und Praxisumfeld sowie im Hotel- oder Gastronomiebereich, bei Neubau und Sanierung.
NovoPorta Plano gibt es ein- und zweiflügelig in individuell planbaren Größen bis zu 2.500 x 2.500 mm. Da moderne Türen nicht nur technisch ausgereift und besonders sicher sein, sondern auch hohe gestalterische Ansprüche erfüllen sollen, steht für die Plano eine große Auswahl an Oberflächen, Farben und Ausstattungsoptionen zur Verfügung.
FARBE WECKT EMOTIONEN
Die NovoPorta Plano setzt keine Grenzen, sie eröffnet neue gestalterische Spielräume. Die reinweiß pulverbeschichtete Basisausstattung erfreut sich ebenso großer Beliebtheit wie die nahezu unbegrenzten Farbräume von RAL, DB, NCS und den sieben lieferbaren Super-Dekor-Holzoberflächen. So kann eine NovoPorta Plano den Vorgaben des Corporate Designs und praktisch jeder Farbphilosophie folgen. Oder sie gefällt den Menschen,die mit ihr leben, ganz einfach.
Und weil eine Tür stets zwei Seiten hat, können sich beide farblich ebenso unterscheiden wie Türblatt, Zarge oder Bänder.
Es lebe die Vielfalt!
DESIGNS, DIE AUFFALLEN ODER SICH EINFÜGEN
Wem ein glatter Farbton zu wenig Gestaltung bietet, kann unter einer großen Anzahl von Folien mit verschiedensten Designs wählen. Aber auch damit ist das Farbkonzept der NovoPorta Plano noch nicht erschöpft: Die Tür ist auch in einem Wunschdesign erhältlich – so individuell wie die Vorstellung des Bauherrn.
Alle Folien sind lichtecht und robust. Wirksamen Schutz vor den Tücken des Alltages bietet die Versiegelung aus mattem oder hochglänzendem Lack.
Für jedes Umfeld die passende Lösung:
Wir führen eine große Anzahl attraktiver Auswahldesigns mit matter (M) oder hochglänzender (H) Klarlackversiegelung.
Verglasungen
VERGLASUNGEN
Die Wahl der Verglasung hat großen Einfluss auf die optische Wirkung einer Tür, folgt aber zunehmend auch steigenden Anforderungen an die Energieeffizienz. Als einziger Hersteller bieten wir heute für die Premio- und Plano-Mehrzwecktüren-Bauarten ausschließlich ISO-Verglasungen mit stark verbesserten Wärmedurchgangskoeffizienten von Ug 1,1 bis 1,3 W/(m2K) je nach gewählter Glasart gemäß DIN EN ISO 10077-1 an.
Je nach Ausstattung können Sie die NovoPorta Premio MZ mit folgenden Verglasungsarten wählen (siehe Tabelle):
Standard- und Sonderverglasungen als ISO-Glas mit besonders niedrigen Wärmedurchgangskoeffizienten gemäß EN ISO 10077-1.
Selbstverständlich auch als Sicherheitsgläser in VSG- oder ESG-Aufbau.
Darüber hinaus auch Ornamentgläser im Floatglas-Aufbau, in drei verschiedenen Designs:
Mastercarré, Masterligne und Milchglas (siehe Abbildungen unten) zur individuellen Gestaltung. Diese streuen das Licht in unterschiedlichen Abstufungen und schützen so vor indiskreten Blicken.
Glasarten NovoPorta Plano und Premio MZ-Bauarten | MZ-1 | MZ-2 |
---|---|---|
Mit ISO-Glas 24 mm Float-Klarglas (Standardglas)* | • | • |
Mit ISO-Glas VSG / VSG 24 mm (Standardglas) | • | • |
Mit ISO-Glas VSG / VSG 24 mm mit Mattfolie (Standardglas) | • | • |
Mit ISO-Glas 24 mm Float-Ornamentglas weiß / Mastercarré* | • | • |
Mit ISO-Glas 24 mm Float-Ornamentglas weiß / Masterligne* | • | • |
Mit ISO-Glas ESG / ESG 24 mm | • | • |
Weitere Sondergläser (nur ISO-Glas) auf Anfrage, Glasdicke 24 mm | • | • |
Verglasungseinrichtung für bauseitiges ISO-Glas 24 mm | • | • |
Bei Verglasung ist die gesicherte Glasleiste standardmäßig auf der Bandseite (auftragsbezogen auch auf der Bandgegenseite) möglich.
* Arbeitsstättenrichtlinien und Unfallverhütungsvorschriften beachten.
NOVOPORTA PLANO AUSFÜHRUNGEN: ORNAMENTGLAS
DURCHWURFHEMMENDE VERGLASUNG
Die Verwendung durchwurfhemmender Gläser nach EN 356 ist bei RC2-Türen Standard. Optional kann jedoch jede NovoPorta Plano- und Premio-Tür, auch in T30-Ausführung, mit durchwurfhemmendem Sonderglas der Kategorie P4A ausgestattet werden – mehr gefühlte Sicherheit inklusive.
Zusätzlich wird dann auch die Glashalteleiste gegen Abschrauben oder Aushebeln gesichert.
GLASHALTE- UND ABDECKLEISTEN
GLASHALTE- UND ABDECKLEISTEN
FUNKTIONALE GLASHALTE- UND ELEGANTE ABDECKLEISTEN
ELEGANTE ABDECKLEISTEN AUS EDELSTAHL
Ob klassisch eckige oder runde Verglasung:
Die eleganten Abdeckleisten aus Edelstahl werten eine Plano mit Verglasung optisch ganz eindeutig auf.
Die Leisten werden ganz einfach über der Standard-Halteleiste angebracht.
GLASHALTELEISTE AUS LACKIERTEM STAHL
Mit den robusten, in Türfarbe lackierbaren Stahl-Glashalteleisten der NovoPorta Plano ergibt sich auch bei der Verglasung eine einheitliche Türoptik im ganzen Objekt.
Die Leisten sind immer gleich breit – unabhängig, ob T30- oder MZ-Ausführung.
VERGLASUNGSPROFILE
NovoPorta Plano T30-1 und T30-2 1) 2)
NovoPorta Plano EI2 30-1 und EI2 30-2 1) 2)
Lieferbare Glasarten:
Verglasung F30 klar für Inneneinsatz
NovoPorta Plano MZ-1 und MZ-2 2)
Lieferbare Glasarten:
Ausschließlich mit ISO-Verglasung lieferbar
¹) Glas nur für Inneneinsatz (Glas vor UV-Strahlung und direkter Bestrahlung mit Halogenlicht schützen). Glas nur für Temperaturbereich von –20 bis +45 °C einsetzbar.
²) Standard-Stahlverglasungsprofile sind beidseitig sichtbar geschraubt. Bei MZ-Türen auf der Gefahrenseite / Außenseite zusätzlich gesichert.
Technik und Details
Technische Daten zur NovoPorta Plano T30 / EI 30
Technische Daten Feuerschutztür NovoPorta Plano T30 / EI 30
Widerstandsklasse / Typ Bezeichnung | NovoPorta Plano T30-1 (EI2 30) | NovoPorta Plano T30-2 (EI2 30) | |
Zugelassene Abmessungen |
|
| |
Baurichtmaß (BRM) | Breite min. – max. | 625 – 1.375 | 1.375 – 2.500 |
Höhe min. – max. | 1.750 – 2.750 | 1750 – 2.500 | |
mit Oberblende | Höhe max. | 3.500 | 3.500 |
davon Tür | Höhe max. | 2.500 | 2.500 |
Rauchschutz mit Oberblende | BRM max. | 3.500 | 3.500 |
Türblatt | |||
Türblattdicke ca. | 64 | 64 | |
Blechdicke ca. | 1,0 | 1,0 | |
Gehflügel | Breite min. – max. | – | 589 – 1.228 |
Standflügel | Breite min. – max. | – | 525 – 1.228 |
Öffnungsart | nach DIN | links oder rechts | Gehflügel |
Wände | |||
Mauerwerk | > 115 | > 115 | |
Beton | ≥ 100 | ≥ 100 | |
Porenbeton-Block-/Plansteine | ≥ 150 | ≥ 150 | |
Bewehrte Porenbeton-Wandplatten | ≥ 150 | ≥ 150 | |
F60-A- und F90-A-Wände aus Gipskarton-Feuerschutzplatten (nach DIN 4102, Teil 4, Tabelle 48) | ≥ 100 | ≥ 100 | |
F60-B- und F90-B-Wände aus Gipskarton-Feuerschutzplatten (nach DIN 4102, Teil 4, Tabelle 49) | ≥ 130 | ≥ 130 | |
Weitere zugelassene Montagewände mind. F60-A/F60-B nach allgemeinem bauaufsichtlichen Prüfzeugnis auf Anfrage | • | • | |
Bekleidete Stahlstützen / Stahlträger mind. F60-A, oder bekleidete Holzstützen/Holzträger mind. F60-B nach DIN 4102-4 | • | • | |
Ausführungen | |||
Feuerhemmend – geprüft nach EN 1634-1 und zugelassen nach DIN 4102 | • | • | |
Mit Brandschutzverglasung ¹) | • | • | |
Auch mit Rauchschutz | • | • | |
Auch schalldämmend (mit absenkbarer Bodendichtung, ohne Glas, Laborwert nach DIN EN ISO 717-1) | ca. 35 dB | ca. 35 dB | |
Auch einbruchhemmend nach DIN EN 1627 (Vollblatt; beidseitig geprüft) | RC2 | RC2 | |
Auch mit Novoferm Design-Oberfläche | BRM max. | 1.250 x 2.250 | 2.500 x 2.250 |
F30-Verglasungen | |||
Rechteckige Normverglasungen mit sichtbar geschraubten Glashalteleisten im Standard verzinkt und pulverbeschichtet grundiert (RAL 9016), optional auch mit zusätzlichen Abdeckprofilen (ohne sichtbare Befestigung) in Edelstahl lieferbar. Mindestfriesbreiten 3-seitig ≥ 150 mm, auf Schlossseite und am Standflügel Mittelanschlag ≥ 180 mm. | • | • | |
Runde Normverglasungen Ausführung Glashalteleisten und Mindestfriesbreiten / Friesbreiten wie rechteckige Normverglasungen. | • | • | |
Sonderverglasung nach Wahl, von 150 x 150 mm bis 849 x 2134 mm. Ausführung Glashalteleisten und Mindestfriesbreiten / Friesbreiten wie rechteckige Normverglasungen. | • | • | |
|
|
| |
Zulassungsnummer | Z-6.20-2262 | Z-6.20-2262 | |
¹) Glas nur für Inneneinsatz (Glas vor UV-Licht und direkter Bestrahlung mit Halogenlicht schützen). Glas nur für Temperaturbereich von –20 bis +45˚C einsetzbar. Skizzen gelten nur für Türgröße 1.000 x 2.000 mm / Alle Angaben zu Verglasungsgrößen beziehen sich auf die lichte Durchsicht je Verglasung. | |||
²) Elemente mit Oberteil nur zum Einbau in Massivwände (Mauerwerk/Beton/ Porenbeton) zugelassen. | |||
• möglich – nicht möglich Alle Maße in mm. BRM = Baurichtmaß RAM = Rahmenaußenmaß LD = Lichtes Durchgangsmaß |
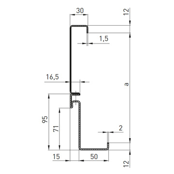
WANDANSCHLÜSSE
WANDANSCHLÜSSE
Übersicht ausgewählter Wandanschlüsse
LICHTE DURCHGANGSMASSE
LICHTE DURCHGANGSMASSE
Ermittlung lichte Durchgangsmasse
Zargen
ZARGEN Übersicht
Schwellen
SCHWELLEN Übersicht
Montage
Einfache Montageverfahren und schnelle Zargenhinterfüllung
IN JEDEM UMFELD ATTRAKTIV, IN VIELEN WÄNDEN FIX MONTIERT!
Bei Stahltüren der Baureihe NovoPorta Plano stehen Ihnen verschiedene, durchweg schnelle, einfache und saubere Montageverfahren und Möglichkeiten zur Zargenhinterfüllung zur Auswahl.
SPEZIELLE TROCKENBAU-LÖSUNGEN / ZARGENHINTERFÜLLUNGEN
SPEZIELLE TROCKENBAU-LÖSUNGEN / ZARGENHINTERFÜLLUNGEN
IN JEDEM UMFELD ATTRAKTIV, IN VIELEN WÄNDEN FIX MONTIERT!
Leichtbauständerwände der Kategorie F60-A / F60-B sind als schnell, sauber und flexibel zu montierende Brandschutzlösungen im Innenausbau bewährt. Mit dem Türsystem NovoPorta Plano T30, speziell für Montagewände, sind auch stumpf einschlagende Türen mit Zarge schnell, einfach und sauber montiert. Das System besteht aus der besonders attraktiven NovoPorta Plano-Stahltür und dem zweiteiligen Zargenprofil 2240B.
Ein wesentlicher Vorteil sind die zugelassenen Zargenhinterfüllungen mit Novoferm Brandschutzschaum und loser Mineralwolle*.
Laut Zulassung muss dabei nur der Falzbereich der Eckzarge hinterfüllt werden, während die spezielle 2240B-Gegenschale frei bleiben kann. Das komplette System ist geprüft nach EN 1634 und gemäß DIN 4102 bauaufsichtlich zugelassen. Es erfüllt bereits heute die Anforderungen der in Vorbereitung befindlichen europäischen Produktnorm EN 16034.
* Rohdichte min. 40 kg/m³, Schmelzpunkt > 1.000 °C, Baustoffklasse A1, DIN 4102-1 bzw. DIN 4102-4
ZARGENHINTERFÜLLUNG
ZARGENHINTERFÜLLUNG MIT HANDELSÜBLICHER MINERALWOLLE
- Mineralfaser-Dämmstoff, Rohdichte ≥ 40 kg/m³, Schmelzpunkt > 1.000 °C, Baustoffklasse A1 bzw. Euroklasse A1
- Geprüft nach EN 1634 und bauaufsichtlich zugelassen nach DIN 4102
- Kostengünstig und verarbeiterfreundlich, da leicht zu transportieren, geringe Rüstzeiten, sauber und schnell zu verarbeiten
- Zeitsparend, da mit loser Mineralwolle nur der Falzbereich im Vorderteil der 2240B-Zarge hinterfüllt wird, während der hintere Teil leer bleiben kann
HINTERFÜLLUNG MIT BRANDSCHUTZSCHAUM
- Geprüft nach EN 1634 und bauaufsichtlich zugelassen nach DIN 4102
- Nur mit Novoferm 1K-Brandschutz-Pistolenschaum (Es dürfen keine anderen freiverkäuflichen Schäume verwendet werden!)
- Reduziert erheblich die Lärmemission beim Schließen der Türen
- Kostengünstig und verarbeiterfreundlich, da leicht zu transportieren, geringe Rüstzeiten, sauber und schnell zu verarbeiten
- Zeitsparend, da mit Brandschutzschaum nur der Falzbereich im Vorderteil der 2240B-Zarge hinterfüllt wird, während der hintere Teil leer bleiben kann. (Überstehender Schaum wird durch Hinterteil verdeckt und muss daher nicht abgeschnitten bzw. entfernt werden.)
AUCH OHNE HINTERFÜLLUNG FÜR T30 ZUGELASSEN
Eine Zarge, die ganz ohne Hinterfüllung eine T30/EI2 30-Zulassung erhält?
Noch dazu in einer Gipskarton-Ständerwand?
Das gibt‘s nicht, dachten Sie?
Die neue zweiteilige Umfassungszarge 2240B schafft das. So geht die Zagenmontage noch schneller! Jede Plano wird im Standard mit 3-D-Bändern ausgeliefert. Die dafür vorzusehenden Bandtaschen in der Zarge sind technisch bedingt größer als bei Standard-Bändern. Der erforderliche Platz für diese Bandtaschen wird üblicherweise durch Ausklinken im UA-Profil geschaffen. Allerdings: Jedes Ausklinken bedeutet eine Schwächung der Wandstatik, die der Monteur dann mit zusätzlichen Bauteilen wieder herstellen muss. Bei der Plano wird bei Einbau in Stahlständerwände (mind. F30-A) in der Laibung doppelt beplankt. Folge: das Ausklinken des UA-Profils für die 3-D-Bandtaschen der Zarge entfällt, einfaches Aussparen aus den GKF-Streifen genügt.
Die Plano bietet aber noch mehr:
Hat der Trockenwandbauer die Wandöffnung genau auf das Baurichtmaß der Tür erstellt, muss die Zarge nicht hinterfüllt werden. Keine Pflicht zur Hinterfüllung und die einfache Schiebeanker-Montage von Novoferm: Schneller kann sauberes Montieren nicht gehen!

FALZ-SCHRAUBMONTAGE
FALZ-SCHRAUBMONTAGE
DIE PLANO MACHT ES AUCH BEI DER MONTAGE EINFACH – MIT NUR EINER SCHRAUBE PRO BEFESTIGUNGSPUNKT
Die Novoferm Falz-Schraubmontage ist das schnelle und saubere Verfahren für die Zargenmontage.
Das Geniale: Eine einzige Schraube pro Befestigungspunkt genügt, um maximale Stabilität zu gewährleisten. Die Konsequenz heißt schnellere Montage. Da die Löcher verdeckt im Zargenfalz liegen, stören sie das gute Aussehen der Tür nicht. Die stumpf einschlagende NovoPorta Plano wird standardmäßig mit Eckzarge ohne Bodeneinstand geliefert. Das bietet alle Möglichkeiten für die effiziente Falz-Schraubmontage an Wände aus Sichtmauerwerk, Beton und (nur für die Plano zugelassen) auch Porenbeton. Wird mit Novoferm Brandschutzschaum, loser Mineralwolle* oder klassischem Mörtel hinterfüllt, ist das Verfahren bauaufsichtlich zugelassen für T30-, Rauchschutz-und Mehrzwecktüren.
Die Plano ist also nicht nur attraktiv, sondern auch ganz schön flexibel.
VERWENDBAR AN VERSCHIEDENEN WANDARTEN
Die Hinterfüllung kann nach Belieben und unabhängig von der Wandart gewählt werden. Bauaufsichtlich zugelassen sind Novoferm Brandschutzschaum (blau), lose Mineralwolle* (gelb) und Mörtel (grau). * Rohdichte min. 40 kg/m³, Schmelzpunkt > 1.000 °C, Baustoffklasse A1, DIN 4102-1 bzw. DIN 4102-4











Haben wir Ihr Interesse geweckt?
Novoferm arbeitet mit einem breiten Netzwerk an Fachhändlern in Deutschland – in Ihrer Nähe – zusammen. Unsere autorisierten Novoferm Fachhändler stehen für fachgerechte Beratung, Verkauf, Aufmaß, Montage sowie Demontage und umweltgerechte Entsorgung unserer Produkten zu günstigen Komplettpreisen.
Wir helfen Ihnen gerne weiter.